您的位置: > 凯发ag旗舰厅-凯发一触即发 > 重庆俏业家装饰 > 公司动态
户型改造不靠拆得多,局部优化才更能显技术,看今天小俏给你分享的这个案例,改得相当“巴适”。
坐标:渝北区
楼盘:昱湖壹号嘉镧
面积:164㎡
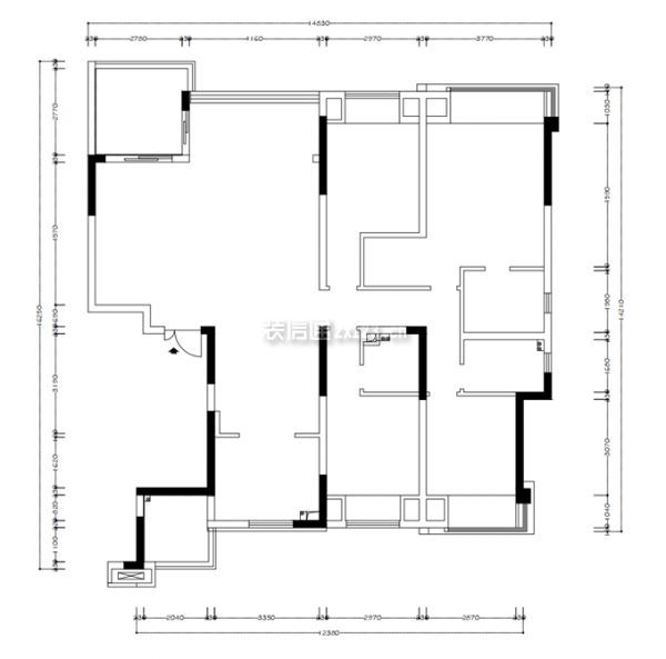
![]()
![]()
客厅原始开间长达4.1米,不拆阳台也能很充裕,正方形180°采光的阳台实属难得,在设计师的强烈建议下,保留下来种花种草,多安逸,引入水源至临近的开放式品茗区和书房区,生活就是这么优哉游哉。
餐厨区用上联动门为餐厅借光,再给突出的冰箱包上斜面柜,小细节,更好看。
卧室飘窗拆除之后,实用面积这不就大了吗?把次卧的衣柜从床侧换到过道,储物面积也扩大了一倍。
这种两个卫生间相邻的设计,在重庆非常常见,看下我们的设计师怎么改的,调整墙体位置,优化面积比例,用起来就不拮据,再把主卫门洞换个方向,微操作,但是好住得多。
儿童房这个原始卫生间拆掉改为衣帽区,靠窗加书桌,考100分没得说,剩下的卧室三件套,靠墙排排放,perfect~
改造后的全貌长这样~再看案例实拍,你觉得怎么样呢?
关注重庆俏业家装饰,了解更多装修技巧
重庆市渝北区金开大道337号金弓·爱尚两江

在线预约
5秒搞定
匹配3位
设计大咖
设计3套
方案对比
全国免费咨询热线
4008-486-123
凯发一触即发 copyright 2010-2023 zx123.cn,装信通装修平台 — 遂宁云匠网络科技有限公司版本所有,并保留所有权利。
免费热线:4008-486-123 icp备案证书号: |
免费申请
装修服务
客服回访
确认需求
三份报价
方案 p k
享第三方
装修保障